



Ремонт часто выходит дорого.
С проектом — дешевле и быстрее.
Рассчитать проектКак это работает

Когда нет проекта, решения принимаются прямо на объекте. Строители задают десятки вопросов, розетки ставят “на глаз”, материалы закупаются с большим запасом. Каждая такая неточность превращается в переделку — а каждая переделка стоит денег и времени.
Архитектурный проект интерьера — это готовые чертежи, по которому строители работают без ошибок и догадок. Вы получаете не просто набор схем — а полноценную инструкцию, по которой ремонт выполняется один раз и правильно.
Что даёт проект:
• понятную планировку с учётом мебели и розеток;
• точные схемы электрики, сантехники и света;
• расчёт всех поверхностей, для расчета материалов без переплат;
Ремонт без хаоса и стресса
Нервы
С проектом всё под контролем: строители знают, что делать, а вы видите результат заранее.
Не нужно бегать на объект и решать вопросы на месте.

Мы берём на себя сложные вопросы, а вам остаётся принимать понятные и уверенные решения.
Ремонт проходит спокойно, без споров и ненужных переживаний — становится понятным, предсказуемым процессом.
Ошибки и переделки — главная причина перерасхода.
Проект исключает их заранее: мы точно рассчитываем объёмы, расставляем розетки, сантехнику, мебель.
Вы покупаете только нужные материалы — без запаса и переплат.
Каждый чертёж экономит не только на материалах, но и на стоимости работ.
Каждая деталь рассчитана заранее — вы точно знаете, что и сколько потребуется.

Без задержек и переделок
Проект структурирует все этапы ремонта: от планировки до расположения розеток — всё просчитано заранее.

Каждый этап идёт по плану, без спешки и срывов. Вы просто видите, как ремонт движется вперёд.
Каждый этап связан с другим — проект продуман как единая система. Строители не ждут решений “на месте” и не возвращаются к уже сделанному.
Все решения приняты заранее.
Рабочие действуют по чертежам.
Материалы закупаются точно по объёму.
Каждый этап согласован.
Прораб занимается качеством.
Ремонт идёт по плану.






Стоимость ремонта ≈ 5 млн
Решения принимаются прямо на объекте.
Ремонт затягивается на месяцы, а бюджет растёт непредсказуемо.
Материалы закупаются “с запасом”.
Строители уточняют десятки деталей.
Из-за переделок растут сроки и стресс.
Итоговая смета превышает план.






Стоимость ремонта ≈ 7 млн

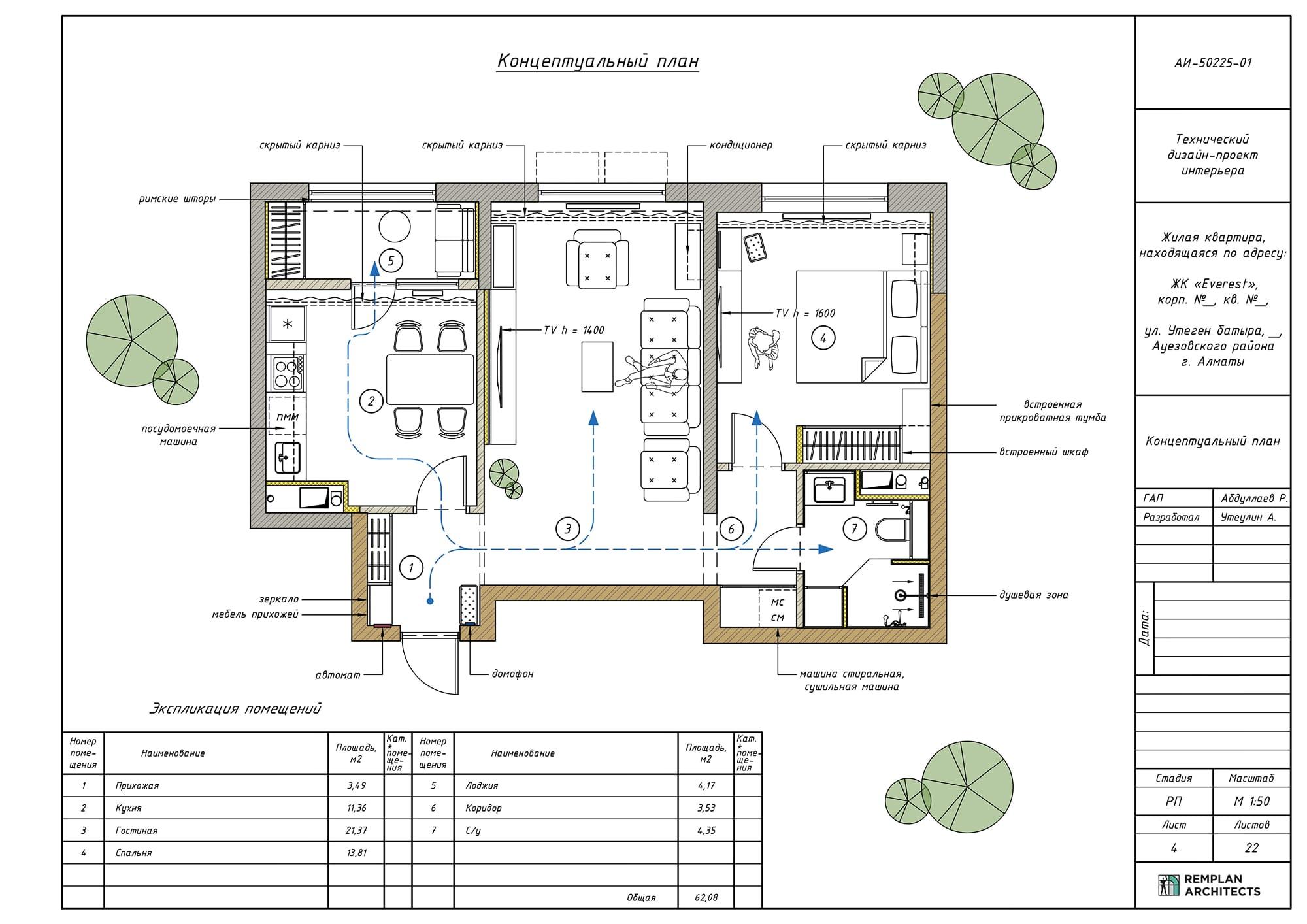
Задача: начать быстрее и создать простор.
Заказчики хотели начать ремонт как можно быстрее и создать просторные пространства.
При изучении объекта выяснилось, что конструктивные элементы и инженерные сети отличаются от эскизов застройщика, поэтому первоначальные идеи потребовали пересмотра.
Решение: переработали планировку и связали все чертежи.
Мы предложили переработать планировку с учётом реального положения коммуникаций и конструкций. Кухню и гостиную объединили в одно пространство — это позволило визуально расширить обе зоны и сделать квартиру светлее. На месте прежней кухни появилась дополнительная комната с отдельным санузлом, а утеплённая лоджия превратилась в отдельную рабочую зону. Каждый метр использован рационально — без лишних зон и «мертвых» углов.
При проектировании технической части план мебели был скоординирован с остальными чертежами — электрикой, освещением, потолками. Мы добавили розетки и выключатели в ключевых зонах — без удлинителей и проводов через комнату.
Для ускорения начала работ мы запустили стройку сразу после этапа планировки. Строители получили демонтажные и монтажные чертежи уже через неделю после старта проектирования и смогли начинать без ожидания полного пакета.
Результат: без переделок, с экономией и комфортом.
Проект помог заранее предусмотреть сложные моменты, что позволило избежать переделок и ускорить ремонт примерно на три недели. По нашим оценкам, экономия на работах и материалах составила около 1,5 млн ₸.
Заказчики отметили удобство планировки и отсутствие лишних согласований — всё шло по плану, без задержек и стрессов.

📐 Реализованный ремонт по нашему проекту.
Задача: Начать ремонт как можно скорее и сделать пространство более открытым. После обследования выяснилось, что конструкции и инженерные сети отличаются от плана застройщика — проект потребовал корректировок.
Решение: Мы переработали планировку с учётом реальных условий. Кухню и гостиную объединили, расширив обе зоны, лоджию утеплили под рабочую зону, добавили отдельную комнату. Все чертежи — от планов до электрики — были связаны между собой, чтобы на объекте не возникало ошибок и уточнений.
Результат: Строители начали работы уже через неделю после согласования планировки. Ремонт прошёл без переделок, быстрее на три недели. Экономия по нашим оценкам — около 1,5 млн ₸. Всё шло по плану, без лишних согласований и стресса.
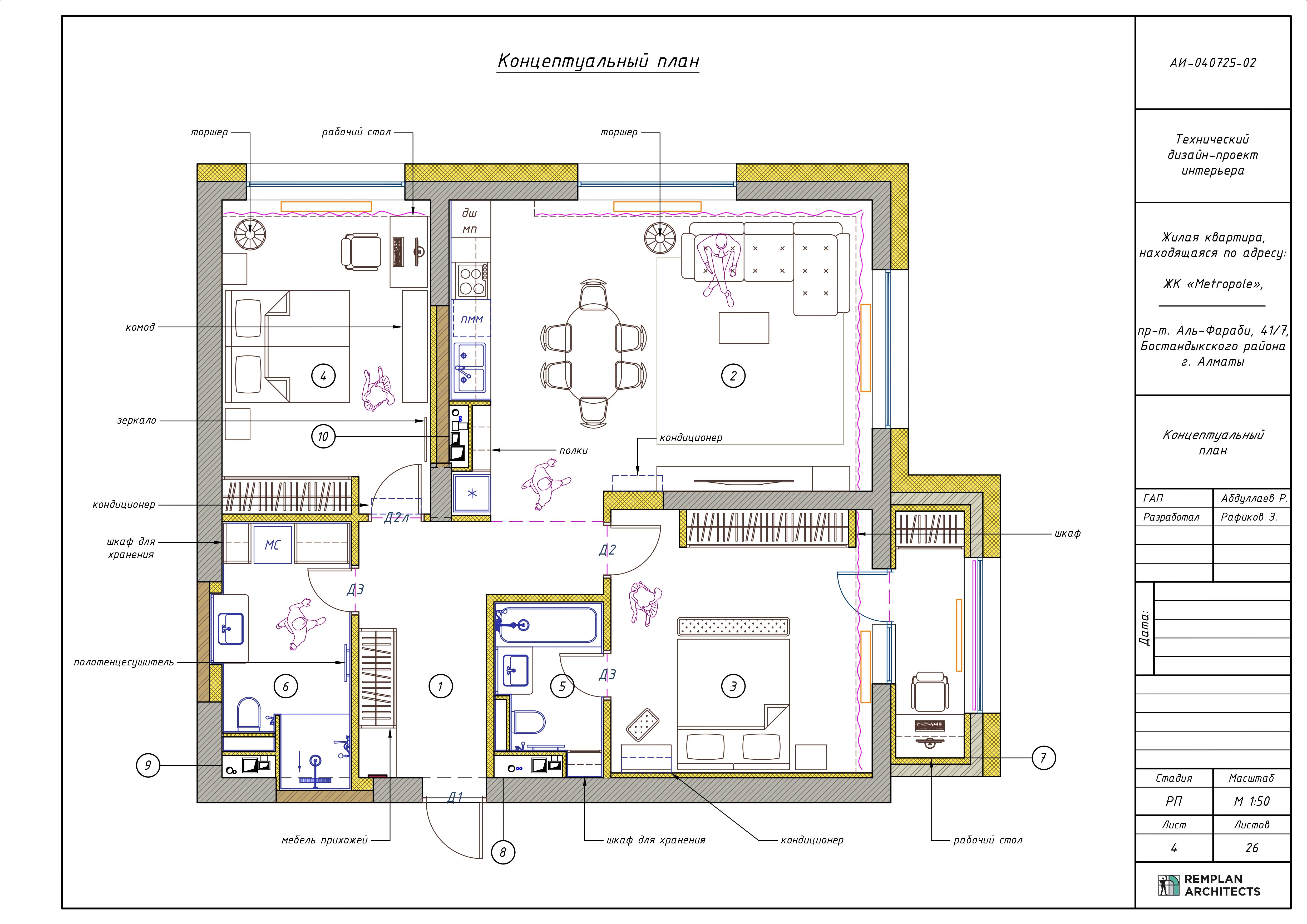
Что вы получите:
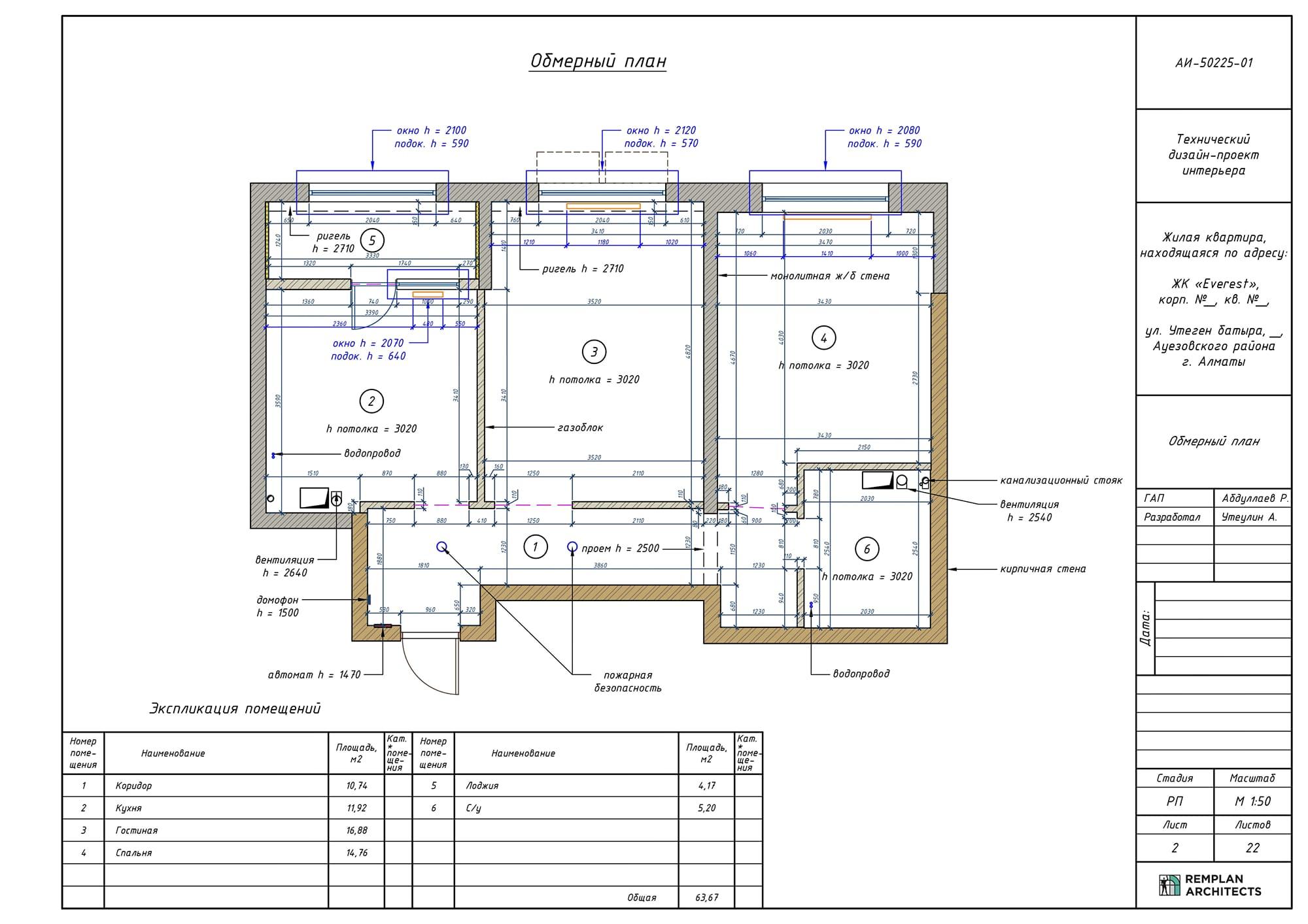
• Обмерный план
• План потолка
• План отопления
• Схема привязки инженерных коммуникаций
• Фотопривязка
• План вентиляции
• План расположения точек инженерных коммуникаций
Стоимость может варьироваться в зависимости от состава проекта
Архпроект
Что вы получите:
• Обмерный план
• Демонтажный план
• Концептуальный план
• Монтажный план перегородок
• План расстановки мебели
• План потолка
• План осветительных приборов
• План привязки выключателей
• План расположения розеток
• План напольных покрытий
• Ведомость отделки помещений
• Подбор материалов
• 3D Визуализация
Стоимость проекта рассчитывается по площади пола помещения.
Работа ведется по официальному Договору.
Дополнительная услуга: Планировка 2500₸
Есть возможность заказать Обмер и/или Планировку отдельно.


Хорошая планировка — это не просто расстановка мебели. Это логика движения, света и функций, заложенная в основу будущего комфорта. Плохая планировка может быть красивой на картинке, но неудобной в жизни — когда шкаф перекрывает розетку, кухня выходит в узкий коридор, а в спальне некуда поставить тумбу.
Чем отличается хорошая планировка:
Мы проектируем планировки так, чтобы каждая стена и каждый метр работали на функциональность и эстетику. Именно поэтому планировка — это основа любого дизайна. Без неё даже самый красивый интерьер не станет удобным для жизни.
Продуманные маршруты передвижения
Взаимосвязь инженерии, освещения и планировки
Реальные пропорции мебели
Отсутствие узких проходов и «мертвых» зон
Такие детали не всегда видны сразу, но именно они определяют, насколько комфортно жить в пространстве.
Готовый проект даёт строителям точную инструкцию, а вам — уверенность, что всё будет сделано по плану и без лишних расходов.